North Bend Central currently has two major facility projects in motion—one already underway and another entering the bidding phase—both reflecting the district’s commitment to long-term planning and student success.
The Tiger Stadium restroom and concession stand project, now under construction, is a direct result of the Community Needs Assessment survey, which identified the facility as a top priority among district stakeholders. This project supports the Board of Education’s 2026 SMART goals for strategic resource planning and facility improvement while addressing key operational needs. The redesigned layout will modernize food service operations by improving preparation efficiency and reducing wait times for spectators. In addition, the project includes expanded storage and updated restroom facilities.
To ensure long-term value, the district emphasized durability and fiscal responsibility throughout the design process. The structure features upgraded 26-gauge metal for enhanced strength and longevity, along with block construction for the exterior stonework—maintaining a cohesive, professional look with existing stadium facilities while saving approximately $17,000. Beyond the building itself, the project also includes a comprehensive upgrade to the electrical infrastructure serving the press box, field lighting, and parking areas. These improvements replace outdated systems with reliable, high-quality components designed to support the facility for years to come.
Current status of the concessions and restroom project as of April 22, 2026:
Approved proposed drawings of the concession and restroom project:

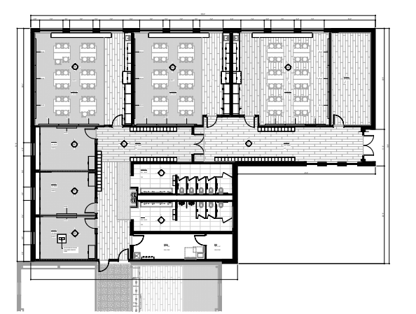
The second project—a proposed expansion of North Bend Central Elementary—is a strategic response to increasing enrollment. The 2026–2027 kindergarten class alone is projected to approach 50 students. By adding three new classrooms, the district will be able to maintain low student-teacher ratios and support three sections at most grade levels. Designed as a phased addition on the north side of the building, the expansion allows for continued growth alongside the community.
The proposal also prioritizes student support and safety. Plans include three dedicated service rooms for ESU, Special Education, Title I, and intervention programs, addressing current space limitations and enhancing the district’s ability to provide individualized instruction. In addition, the design incorporates a hardened tornado shelter to ensure protection for students and staff during severe weather events.
Financially, the project would be funded using dollars already collected through the district’s Special Building Fund, reinforcing a commitment to responsible planning without additional tax impact.
The elementary expansion is still in the proposal stage, with bids expected to be returned in May. Pending approval, the district hopes to move forward shortly thereafter.
Proposed site, plans, 3D renderings for the elementary project:





